Nem túl lelkesítő Rákosrendező nyertes terve, de Rákos-Dubajnál minden sokkal jobb
Nemzetközi csapat nyerte el az első helyet azon a tervpályázaton, amit a főváros Rákosrendező mestertervének elkészítésére kiírt. A vártnál jóval kevesebb zöld, a vártnál sűrűbb, magasházas negyed és első ránézésre elégtelen kötöttpályás kapcsolatok árnyalják azt az örömöt, amit az alapvetően jó városépítészeti koncepció miatt érezhetünk. Egy éve bukott meg a kormány cinikus kiárusítási terve, ami teljesen irreális módon felhőkarcolós luxusnegyedet álmodott Budapest egyik legfontosabb rozsdaövezeti fejlesztési területére. Ehhez képest a mostani vízió emberléptékű és korszerű, de messze nem olyan zöldközpontú, amilyet remélni lehetett.
Emlékeztessük magunkat, honnan indultunk. Legalább elvesz kicsit abból az elégedetlenségből, amit a Rákosrendező nemzetközi tervpályázat nyertes pályaművének nézegetése közben érezhetünk.
2025 elején még úgy tűnt, hogy Budapest egyik legértékesebb rozsdaövezeti fejlesztési területét a kormány egyben adja el egy emirátusi fejlesztőnek, Mohamed Alabbarnak, aki teljesen szabad kezet kapott volna, hogy azt építsen, amit akar: egyesek szerint luxusnegyedet azoknak a gazdag külföldieknek, akik a magyar kormány segítségével szereznek uniós állampolgárságot, Karácsony Gergely szerint inkább olyan lélektelen, toronyházas falansztert, amilyet a szerb fővárosban már felhúzott Belgrade Waterfront néven. A területre felhőkarcolók építését ígérték, bár az sem derült ki egyértelműen, hogy ezek milyen magasak lennének (a tippek 240 és 500 méter között szórtak) és milyen célt szolgáltak volna. A Hősök tere világörökségi rangú összképét viszont örökre tönkretette volna a Millenniumi emlékmű mögött felbukkanó tornyok látványa.
Aztán tavaly február elején bekövetkezett a váratlan fordulat: kiderült, hogy a főváros egyik cége, a Budapesti Közművek Zrt. elővásárlási joggal rendelkezik, amit a kormány előbb tagadott, majd elismert, és lehetővé tette, hogy a főváros megvegye a terület vasútüzem alól felszabadítható 85 hektáros részét. A kormány az arab befektetőnek megígért 320 milliárdos közlekedésfejlesztési beruházásokat is megígérte a fővárosnak, annál is inkább, mert ígérni nem kerül semmibe – ami viszont biztos, hogy az 50,9 milliárd forintos vételárat három részletben ki kell nyögnie a fővárosnak. Egyáltalán nem olyan magától értetődő, hogy ennek így kell lennie,
lehetne például közös cél, hogy korszerű, zöld és élhető városrészek valósuljanak meg a felhagyott vasúti területeken, amit az állam a területek ingyenes rendelkezésre bocsátásával segíthetne,
és akkor a főváros az elkölthető pénzét nem a vételár törlesztésére fordíthatná, hanem környezeti kármentesítésre, parkosításra, közlekedési fejlesztésekre, vagyis olyasmire, amire szükség van. Így zajlik ez Bécsben az ottani önkormányzat, az állam és az ÖBB vasúttársaság együttműködésével.
Nálunk azonban nem így zajlik, így a főváros kiperkálta az első vételárrészletet, 12,7 milliárd forintot tavaly ilyenkor, ami ahhoz kellett, hogy a terület tulajdonosává váljon; a további részletek kifizetését már az eredeti szerződés is az állami vállalások teljesítéséhez kötötte, így bármilyen színezetű kormány alakul, van némi alkudozási mozgástér.

Az tavaly biztos lett tehát, hogy Rákos-Dubaj nem lesz, és Mohamed Alabbart megvigasztalták azzal, hogy megvehette a Belügyminisztérium műemlék épületét a Széchenyi téren (50,8 milliárdért – úgy látszik az emirátusi üzletembernek mindenképpen pont ennyi elkölthető pénze volt Budapestre). Rákosrendező ügye lekerült a politikai napirendről, de elkezdődhetett a csendes háttérmunka, ami ahhoz szükséges, hogy az elhagyatott területen valóban új városrész épüljön. Létrejött a Rákosrendező projektiroda Dományi Bálint építészmérnök, Vitézy Dávid korábbi munkatársa vezetésével, megtörtént a terület felmérése és ősszel kiírták a nemzetközi tervpályázatot a beépítés kereteit rögzítő mesterterv elkészítésére. Ennek az eredményhirdetése történt meg tegnap.
A meghívásos pályázaton végül tizennégy építésziroda vett részt, zömében olyan társulások, amelyeket közepes méretű nyugati cégek alkottak a helyi viszonyokat jól ismerő magyar partnerekkel. A pályaműveket a projektiroda oldalán lehet tanulmányozni, vagy akár tablón is meg lehet őket nézni a margitszigeti Kristály Színtér bemutatótermében (április 1–2-án, illetve április 13–30. között). A nyertes is egy nemzetközi csapat lett, amelyből a magyar partnert sokan ismerhetik a 4-es metró nemzetközi díjakat elnyert, különleges szerkezetű állomásai miatt: ők a Sporaarchitects. A francia Coldefy viszont legfeljebb azoknak lehet ismerős, akik szenvedélyesen bújják a közepes méretű és izgalmasságú francia vidéki városfejlesztési projekteket. Igaz, Budapesten is terveztek már: a Kánai-tó melletti, épülőben lévő Lake11 lakópark beépítési koncepciója és egyik épülete fűződik a nevükhöz. A társulásban részt vett még egy német konzorcium, egy hamburgi tájépítész iroda meg egy Londonban működő szlovák építészpáros.
Érdemes rögzíteni, hogy a kiválasztási folyamat úgy zajlott, ahogy annak minden ilyen léptékű (vagy akár jóval kisebb) projekt esetén történnie kellene. A nemzetközi pályázat bíráló bizottságában részt vett Erő Zoltán budapesti főépítész, a két érintett kerület főépítésze, a főtájépítész, az országos főépítész, s számos jónevű szakértő is segítette a munkájukat. Bármit gondoljunk is a nyertes tervről,
a kiválasztási folyamat legitim: azok döntöttek róla, akiknek normális körülmények között dönteniük kell,
az állam ezúttal nem tudta olyan módon elvonni a jogokat, mint a város jövőjét meghatározó kiemelt projektek, például a zuglói új kormányzati negyed esetében. A legfontosabb szakmai elvárások, fenntarthatósági szempontok már a kiírásba beépültek, és a kiválasztott terv biztosan nagyságrendekkel jobb, mint amit Rákos-Dubajról rajzoltatott volna Alabbar úr. Minden kritikai szempont mellett – aminek ettől még van helye – ez jelentős politikai és urbanisztikai eredmény.


Budapesten nemzetközi urbanisztikai tervpályázat utoljára a Déli Városkapu (Diákváros) esetében volt 2018-ban; azt a pályázatot a norvég Snøhetta nyerte, aztán nem lett belőle az égadta világon semmi, mert a kormánynak a 2019-es önkormányzati választás után elment a kedve az ellenzékivé lett főváros fejlesztésétől. A területet előbb oda akarták adni a kínai Fudan Egyetemnek, majd máig nem egészen világos körülmények között az ötlet lekerült a napirendről (a Fudan Alapítvány 6 milliárd forint közpénzt kapott, a működésre több száz millió forintot elköltöttek, 2024 végén aztán visszatértek ahhoz, hogy Diákvárost építenének, de a kormányzati ciklus úgy ér véget, hogy a területen egy kapavágás sem történt).
A Déli Városkapu esete jó példa arra, hogy a nagyszabású városfejlesztési víziókat érdemes egészséges szkepszissel kezelni:
az ilyen tervek vagy megvalósulnak, vagy nem, rendkívül hosszú kifutásúak, és menet közben rengeteget változhatnak.
Ez igaz Rákosrendezőre is. A jelenlegi tervek szerint a pályázat nyertese 2028-ig dolgozhat a részletes mesterterv elkészítésén, a megvalósítás legfeljebb ezután indulhat el az első ütemmel. Ez az első ütem a Rákosrendező vasútállomás körüli nagyvárosias központot takarja, ezért szorosan összefügg a Szegedi úti villamos- és közúti felüljáró megépítésével; ennek gondolata még a Tarlós-érában fogalmazódott meg, és a terveit a rég megszűnt Budapest Fejlesztési Központ (BFK) készítette el 2021-ben. Ezt az állami szervet akkor Vitézy Dávid vezette vezérigazgatóként, aki időközben fővárosi erős ember lett a Podmaniczky Mozgalom színeiben, és most társelnökként vezette a Rákosrendezőről szóló tervpályázat bíráló bizottságát Karácsony Gergely főpolgármesterrel.


A változó szerepek ellenére fennálló személyi folyamatosság azt is jelenti, hogy a Szegedi úti felüljárót változatlan elemként emelték be a pályázati kiírásba, és természetesen a nyertes terven is szerepel. A menetrend tehát úgy nézne ki, hogy az állam vállalásként megépíti a felüljárót (ez a Városliget autómentesítéséhez is szükséges, bár a Liget Projekt mára gyakorlatilag tetszhalott állapotba került, úgyhogy ki tudja, érdekel-e ez még bárkit), utána kezdődhetne meg a mesterterv első ütemének megvalósítása. Nagyon optimista számítás szerint 2030 körül. Ebből nagyjából sejthető, hogy mikorra kerülne sor azt ötödik ütemet jelentő, Vasúttörténeti Park körüli területek beépítésére. A korábban általunk bemutatott bécsi példák is igazolják, hogy
még egy gazdag és jól szervezett városban is 10-20 éves megvalósulási idővel kell számolni egy ekkora városfejlesztési projektnél.
Budapest se nem gazdag, se nem jól szervezett, szóval bármi megtörténhet.
Igaz tehát, hogy szinte fontosabb, hogy milyen lesz a nulladik ütem, vagyis a terület átmeneti hasznosítása, amiről Bardóczi Sándor főtájépítész beszélt a 444-nek, hiszen ez történhet meg ténylegesen a következő egy-két évben, ráadásul számtalan példa van arra, hogy az ideiglenes hasznosítás végül felülírja a korábbi terveket, és teljesen más irányba vezeti egy városi hely fejlődését, mint amiről eredetileg szó volt. Hogy csak egy budapesti példát mondjunk: így jött létre a még mindig félkész Városháza park a Városháza hátsó udvarai helyén, amelyet korábban nem szántak zöldterületnek, de Demszky Gábor főpolgármester 2005-ben megnyitotta egy részét; az ide szánt új beépítés soha nem valósult meg, és ma már nem is javasol ilyesmit senki.
Mégsem mindegy, hogy milyen az a mesterterv, ami 2028-ra elkészül, és nem mindegy a mostani pályázati eredmény. Egyrészt: pár év múlva ennek mentén kezdődhet el a megvalósítás, másrészt a mostani pályázatnak az is célja volt, hogy markánsan eltérő víziót, jövőképet mutasson, mint azok a sebtében felhúzott lakótelepek, amelyeket a kormány a hozzá közel álló fejlesztőkkel építtet (mint például a XV. kerületi Szilas Liget vagy a lerombolt Közvágóhíd helyén magasodó City Pearl). Egy koherens alternatíva felmutatása igenis lényeges.
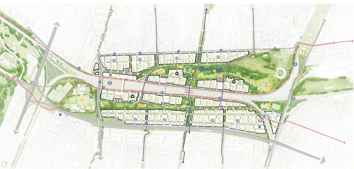
A kiírás eleve meghatározta a leglényegesebb paramétereket: (1) a területen 8000, preferáltan 10 ezer lakást kellett elhelyezni; (2) legalább 25 hektárt kellett zöldterületként megtartani; (3) napi 60 ezer átszálló utast kiszolgáló intermodális csomópontot kellett létrehozni Rákosrendező vasútállomásnál. Számos más eleve meghatározott tényező is volt: a terület kapcsán régóta megfogalmazott elvárás a vasúti pályánál a föld alá bujtatott Rákos-patak kiszabadítása, a már említett Szegedi úti átkötés, a Vasúttörténeti Park nagyvasúti kapcsolatát biztosító vágányok megtartása vagy éppen a Kisföldalatti meghosszabbítása mint fő kötöttpályás közlekedési elem. Mindezek benne vannak a nyertes pályaműben, nem is nyerhetett volna olyan alkotás, amely ezeket nem tartalmazza.
A zuglói önkormányzat már a pályázati kiírás elkészítése után, tavaly szeptemberben fogalmazta meg a saját elvárásait, többek között azt, hogy az épületek 50 százaléka ne lakóház legyen, hanem a kerületnek építményadót fizető irodaházak és egyéb vállakozást befogadó épületek. Egyelőre nem látszik, hogy ennek a képviselőtestületi határozatnak érdemi ráhatása lenne a tervezési folyamatra.

A területi lehatárolás magában rejtett egy jelentős ellentmondást: 244 hektáros volt a teljes tervezési terület, a fejlesztési akcióterület 148 hektár, de ebből a főváros tulajdonosként csak 85 hektárral rendelkezik. Nyilvánvalóan azért született ilyen kiírás, hogy a tervezők vegyék figyelembe a szélesebb városi kapcsolatrendszert, szőjjék össze a vasúti rozsdaövezetet a XIII. és a XIV. kerület szomszédos, lakott részeivel, gondolják át a közlekedési kapcsolatokat. Ugyanakkor a realitás az, hogy a főváros leginkább a saját területén tervezgethet, és egész biztosan nem fog történni semmi például a Szőnyi út és a Tengerszem utca családi házas lakóövezetével vagy a BVSC sportteleppel – a reális pályaművek ezt a tényt számításba vették.
A pályázat legfontosabb elemei nem az épületeket vagy a parkokat mutató hangulatképek, hiszen egy mesterterv nem ezekről szól, inkább csak az elképzelt városrész általános jellegét érzékeltetik. Igazán a helyszínrajzok számítanak, még ha azok első ránézésre kevésbé látványosak is. A nyertes pályaműről a programiroda egy makettet is készített (ezzel a tervezők is az eredményhirdetés helyszínen találkoztak), ami különösen jól érzékelteti a tervezett beépítést.
Egyértelműen látszik: a tizennégy pályázóból azt a nyolcat díjazták, amelyek a legértékesebbek voltak, és külön öröm, hogy a bizottság nem értékelte azokat a terveket, amelyek valamilyen öncélú formai gesztus vagy geg köré rendezték volna az új városrészt. Ilyen tervet adott be például a leghíresebb, sztárnak minősülő pályázó, a Bjarke Ingels Group (BIG) – és még csak megvételt sem nyert. A nyertes pályamű
a kiírásnak megfelelő, racionális munka, megvalósulása esetén hozná az átlagos bécsi szintet, mégis nehéz iránta lelkesedni.


Egy városfejlesztési mesterterv bemutatása meghaladja e cikk lehetőségeit, és ezúttal maga a kiírás is szokatlanul komplex volt: utcahálózatot, közlekedési rendszert, zöld és kék (vizes) infrastruktúrát, építészeti arculatot, tömböket, funkciókat, energiahatékonyságot, lakásméreteket kellett a tervezőknek végiggondolniuk. Néhány szempontot talán mégis érdemes felvillantani, amiben ez a terv kevesebbet ad annál, mint amit a folyamattól remélni lehetett.
A vártnál kevésbé zöldközpontú
A városvezetés kezdettől azt mondta, hogy a Rákosrendezőn kialakuló városrész szíve egy új városi nagypark lesz, ami a területen spontán módon kialakult erdősültség egy részét megőrzi, és az új negyedek jórészt e köré szerveződnek majd. Az előzetes felmérések nyomán az is látszott, hogy a legértékesebb növényzet a Vasúttörténeti Park melletti területrészen található.
A nyertes pályamű valóban itt helyezi el az egyik nagyobb zöldterületet a három közül, s Erdő parknak nevezi el, de ez időközben annyira összement, hogy már nem éri el a kritikus mértéket. A kiírásban elvárt zöldterület összességében vélhetően megvan (ezt ellenőrizni nincs módunk), de úgy szétmasszírozva az épületek között, hogy a nyertes mesterterven valódi nagypark már nem látszik, inkább csak kisebb városi zöldterületek láncolata. Az Erdő parkot ráadásul egy széles, beépített sáv választja el a Vasúttörténeti Parktól, így még beszűkítettebb hatást kelt. Ezt valószínűleg a bíráló bizottságban is szóvá tehették, mivel a zárójelentésben szerepel, hogy „a javaslatban szereplő park mérete nem éri el a 15 hektárt”. Az épületek ebbe parkba is betüremkednek a beépített sáv felől, ami erősen kétségessé teszi, hogy jelentős faállomány őrizhető meg.
De nemcsak a nagypark hiánya kiábrándító, hanem általában a zöldterületek elhelyezése is. A második nagyobb zöld egység a sínek túloldalára helyezett Vasút park. A kettőt a Völgy parknak nevezett zöld korridor köti össze a revitalizált Rákos-patak mentén. Ezen az ábrán különösen jól látható, mi a probléma ezzel az elhelyezéssel:

Látszik, hogy a három zöld blokk a megmaradó vasúti folyosó két oldalán helyezkedik el, illetve egy szakaszon alatta, mivel a patakot a szintben maradó vasút alatt bontják ki, és vezetik át. Ezek a területek peremhelyzetűek, marginálisak, a zöld itt nem önérték, csak a lakások minőségét és az eladhatóságot emelő tényező, azt a célt szolgálja, hogy a lakások közül minél több parkra nézzen. Hogy a nyertes pályamű mennyire nem zöldközpontú, azt legjobban a második helyezett alkotással való összehasonlítás mutatja meg; az a terv valóban nagy, átfogó, kiterjedt zöldterületeket tartalmaz, és azokat elhúzza a vasúttól. Ott valóban létezik a megígért nagypark és a Vasúttörténeti Parkkal szerves egységet alkot. Csak sajnálni lehet, hogy a bírálók végül nem azt választották, hiszen a telepítés a legfontosabb kérdés volt.
Zöld szempontból további csalódást okoz, hogy ez a mesterterv eloszlatja a reményt, hogy kialakítható egy valódi zöld korridor Rákosrendező és a Városliget között. Ahogy láttuk, még a tervezett zöldterületek is elég szaggatottak, de
a három parkrész együtt is csak egy elszigetelt foltot alkot a sűrű, városi beépítésben, a Városligettől teljesen elvágódik.
Ez törvényszerű következménye volt annak, hogy az új pályaudvar mindkét oldalára nagyvárosias beépítést képzelt el a kiíró. Ehhez képest legalább a Rákos-patak mentén létrejön egy rövidebb, keresztirányú zöld tengely, bár a terveken szereplő meanderes kialakítás és a patak nyomvonalának erőszakolt meghosszabbítása meglehetősen öncélú elem; valódi ökológiai rehabilitációra ilyen rövid, infrastruktúrával terhelt szakaszon nincs mód, a dolog leginkább azt a célt szolgálja, hogy a patak hosszabb szakaszon díszítse a városi parkot.
A bécsi példákat bemutató cikkben elmeséltük a Norbahnviertel városrész esetét, ahol a 2010-es évek elején rájöttek, milyen értéket jelent a területen megmaradt, illetve oda spontán módon visszatért természet, és 2014-ben átírták a húsz évvel korábbi, nagyobb beépítést előrevetítő mestertervet. Így jött létre az osztrák főváros egyik legizgalmasabb új parkja, a Freie Mitte. Még bízhatunk benne, hogy a lassú megvalósulás miatt Budapesten is ez történik, de maga a kiválasztott pályamű zöld szempontból a vártnál sokkal kevésbé nagyvonalú.

A vártnál jóval sűrűbb és magasabb beépítés
Rákos-Dubaj tervét a szélesebb nyilvánosságban a toronyházak tették népszerűtlenné. 200 méternél magasabb tornyokat szerencsére a mostani mestertervben nem találunk, de azért kissé meghökkentő, hogy milyen sűrű és magas házakból álló, nagyvárosias beépítést képzeltek el az új Rákosrendező pályaudvar két oldalára. Önmagában a szándék egy teljes értékű városi alközpont létrehozására a tömegközlekedéssel várhatóan legjobban ellátott helyen érthető, abban azonban egyáltalán nem vagyunk biztosak, hogy ezt 20-22 emeletes magasházakkal kell megoldani. Ezt a bizottságban mások is kétségbe vonhatták, mivel a zárójelentésbe bekerült egy ilyen mondat: „kétséges a 90 méteres toronyházak társadalmi elfogadottsága és városképi hatása, ezért ezek léptékének újragondolása javasolt.”
A szabályozás kétségtelenül megengedi ezt a méretet, és Bécsben is épültek az új negyedekben magasházak, többek között azon az alapon, hogy ezáltal több zöldterület maradhat. Ennek ellenére a 90 méter nagyon sok, és láttuk, hogy a terv egyáltalán nem bőkezű parkokban sem, így a kevés zöldterület kombinálása a magasházas központtal összességében kimondottan üzleties hatású. E két tényező miatt tűnik úgy, hogy Rákosrendező most elfogadott mesterterve valójában
nem nyújt érdemi, bátor alternatívát a városban jelenleg zajló, alapvetően a befektetők által diktált fejlesztésekhez képest.
Legfeljebb a szokásos metódusnak egy kicsit jobb példája.
Ha megmutatjuk a tervezett új pályaudvar két oldalának tömegeket és sűrűséget érzékeltető látványtervét, látható, hogy milyen messze van ez attól, hogy az üzleties fejlesztési szemlélet alternatívája legyen. És látható az is, hogy a szomszédos, döntően még 20. század eleji, városias angyalföldi beépítéshez – de akár az elmúlt húsz évben épített társasházakhoz – képest milyen durva léptékváltást jelent; hatásában nem nagyon tér el az új zuglói kormánynegyed és környezete feszült, diszharmonikus viszonyától:

Mivel az első ütem pont ennek a megépítése lenne, az új Rákosrendezőről a benyomást is ez a terület határozza majd meg.
Elégtelen kötöttpályás kapcsolatok
Az elmúlt évtizedekben kialakult a várostervezői konszenzus, hogy Rákosrendezőn három kötöttpályás közlekedési eszköz alkotja majd az új városrész tömegközlekedésének gerincét: (1) a városi-elővárosi forgalom fogadására alkalmassá tett, új pályaudvarral bővített vasútvonal; (2) a Nagy Lajos király útja és a Béke út villamosvonalai felé kapcsolatot teremtő Szegedi úti átkötés; (3) és a Kisföldalatti északi irányú meghosszabbítása.
Az első kettő létjogosultságát valóban senki nem vonhatja kétségbe, a harmadik dogmává merevedését illetően viszont lehetnek kétségeink. Egy 130 éves, korlátozott kapacitású, alapvetően belvárosi jellegű, műemlék viszonylatra ráterhelni egy komplett új városrész bejáró forgalmát eleve kétséges megoldásnak tűnik, ráadásul ez ugyanúgy a Nagykörúttal teremtene összeköttetést, mint a vele párhuzamos vasútvonal – alig egy megállóval arrébb.
A Kisföldalatti északi irányú meghosszabbításáról korábban olyan nyomvonalterv is született, ami inkább a Kassai térre vitte volna tovább a vonalat, néhány megállóval kiszolgálva Zuglónak ezt a tömegközlekedéssel rosszul ellátott, városias részét. Ez jóval kisebb, a Kisföldalatti léptékéhez jobban illő hosszabbításnak tűnik – de ahogy eldőlt, hogy Rákosrendezőn új városrész épül, a vonal átkanyarítása a pályaudvarhoz kötelező elemmé vált. A nyertes pályaműben ugyanez rögzül: három új megálló a pályaudvarnál, a Rákos-pataknál és a terület legtávolabbi pontján, a Sport deltának elnevezett résznél, ahol a vonal ismét a föld alá bukik, miután a pályaudvartól nyílt felszínen lett továbbvezetve a vasút mentén.
Ezen kívül semmilyen egyéb kötöttpályás kapcsolat nincs, csak egy autóbuszjárat a Vasúttörténeti Park bekötővágánya mentén. Valójában
a terv olyan léptékű városépítést vizionál a felszabaduló vasúti területen, ami a sínek mindkét oldalán indokolttá tenné egy új, nagy kapacitású villamosvonal végigvezetését;
ez ráadásul a Tatai úton vezetve az elmúlt években egyre jobban átépülő szomszédos angyalföldi városrészeket is kiszolgálná. Egy új villamoshálózat kiépítése esetén a Kisföldalatti meghosszabbítását sem kellene feltétlenül Rákosrendező kiszolgálásának alárendelni. Budapesten ilyen léptékű fejlesztéseket a város – az elmúlt két évtized negatív tapasztalatai miatt – nem nagyon mer álmodni, de pont egy ilyen pályázaton születhetett volna az új városrész léptékéhez illő megoldási javaslat.

A most induló tervezési szakaszban természetesen van még mód sok mindenen változtatni, hiszen azt az eredményhirdetésen is hangsúlyozták: alapvetően a tervezőt válaszották ki, és a további díjazott pályaművekben is bőven vannak olyan javaslatok, amelyeket a bírálók kiválónak tartanak. A végleges tervbe ezek is beépülhetnek.
Azt is érdemes lenne végiggondolni, hogyan lehetne az új városrész identitását erősiteni, többet megőrizni a lokális értekekből, a vasúti múlt emlékeiből (pl. a legendás gurítódomb), a történelmi sporttelepekből – ez a jelenlegi tervben kizárólag a Kapagyárnak nevezett egykori vasúti szerelőműhelyek megőrzésében érhető tetten. Remélhetőleg van tere tehát annak, hogy ez a korrekt, de nem túl inspiratív mesterterv valamivel jobb irányba fejlődjön tovább. Idő mindenesetre bőven van rá.
Aztán lehet, hogy úgyis minden egészen másként alakul.
Nyitókép: a nyertes pályamű látványterve az új állomás két oldalára szánt sűrű, magasházas beépítéssel (forrás: Coldefy et Associés Architectes Urbanistes // Cityförster | Brehm Hansen Niehüser Nolting Richter Seidel Sobota Partnerschaft mbB Architekten // Sporaarchitects Kft. // Treibhaus Landschaftsarchitektur Hamburg // Marko and Placemakers s.r.o.)
Ezt a cikket nem közölhettük volna olvasóink nélkül. Legyen támogatónk a Donably-n, a biztonságos, magyar fejlesztésű előfizetési platformon. Paypal, utalás és más lehetőségek itt >>>

