Újra meghirdették a rezidencia telkét – sosem látott képeket mutatunk az egykori zárt kormányszállóról
Ismét meghirdették eladásra a Béla király úti kormányzati ingatlant, vagyis bejött jóslatunk, hogy az első licit eredménytelensége ellenére még a választások előtt mindenképpen el akarják adni az ősfás budai telket, ahol a köztársasági elnök rezidenciája is található. A zárt állami villapark történetében rengeteg a fehér folt. Mostantól azonban eggyel kevesebb ilyen van: Polinszky Tibor, aki 1977 és 1985 között volt a kormányvendégház felújításának és bővítésének tervezője, előlépett a nyilvánosság elé, és beszámolt az egykor szigorúan titkos építkezés részleteiről. Neki köszönhetően most olyan képeket is megmutathatunk a 80-as évek jelentős állami presztízsberuházásaként épült kormányszállóról, amelyeket eddig a nyilvánosság nem ismerhetett.
Múlt héten közöltünk egy átfogó anyagot a Béla király úti állami ingatlanegyüttes tervezett eladásáról, abban az írásban megjósoltuk: bár az első licit eredménytelenül zárult, még a választások előtt újra kísérletet tesznek az eladására. Ma valóban újra megjelent a Béla király úti kormányrezidencia az MNV Zrt. által meghirdetett ingatlanok listáján. Az árat viszont várakozásunkkal ellentétben nem vitték lejjebb, ismét 28,4 milliárd forintért keres gazdát a Hegyvidék talán legértékesebb óriástelke; a licit ezúttal február 3-ig tart.
Korábbi cikkünkben arra is kísérletet tettünk, hogy a hatalmas svábhegyi telektömb múltját rekonstruáljuk. Ez a múlt azonban teli van fehér folttal: az egykori Perger-Andrássy-nyaraló és a szomszédos kisebb villák telkét 1950-ben kisajátították és összevonták, hogy a Magyar Dolgozók Pártjának vezetése számára létrehozzák az eufemisztikusan szabadsághegyi lakótelepnek nevezett villaparkot. Ez a négy szocreál villából álló, szigorúan elzárt telep kezdetben a pártvezetők kikapcsolódását, üdülését szolgálta, majd kormányvendégházként működött magas rangú külföldi vendégek számára, a rendszerváltás után pedig egyik épülete a köztársasági elnök rezidenciája lett (egészen 2024-ig: Sulyok Tamás már nem költözött be, hogy ezzel előkészítse az utat az értékes ingatlan eladásához).
Az ingatlan rendeltetése miatt mindvégig szigorúan őrzött objektum volt, ahol fotók sem készülhettek, a nyilvánosság számára gyakorlatilag ismeretlen maradt. Cikkünk megjelenésének napján azonban napvilágot látott egy másik írás is, amivel a kirakós játék egy nagyobb hiányzó darabja a helyére került. A Tervlap építészeti folyóirat hasábjain jelentkezett Polinszky Tibor építész, aki a Középülettervező Vállalat (KÖZTI) keretében hét évig dolgozott 1977 és 1985 között a Béla király úti komplexum felújításán és bővítésén. Erről a munkáról negyven évig nem beszélhetett, mivel az építkezés szigorúan titkos volt, olyannyira, hogy az elkészült terveket belügyes felügyelete mellett meg is semmisítették az építkezés befejezése után. Polinszky azonban mégis rendelkezik néhány olyan kivételesen értékes dokumentummal, ami az épületekre vonatkozik, és ezek közül többet most szeretnénk megmutatni.
Igazi történelmi ritkaságok következnek:

A Rákosi-korszakból megörökölt, később kormányvendégházként használt épületegyüttes nagyszabású kibővítéséről a Honvédelmi Bizottság 2/290/1978. sz. határozata döntött; ennek nyomán indult el az az építkezés, amelynek keretében a komplexumot alkalmassá tették nagyszabású nemzetközi delegációk tanácskozásaira is. A fenti makett fotója mutatja, hogy a területen új belső úthálózat épült, amire felfűzték az összes régi és új épületet, valamint egy nagyobb parkolót is kialakítottak, hiszen a népes delegációk fogadásához jóval több gépkocsit kellett elhelyezni, mint korábban, amikor villákat csupán néhány pártvezető, illetve magas rangú vendég használta. A Mátyás király út felőli kerítéshez közel egy üzemeltetési épület épült, amelyben energiaközpontot alakítottak ki (ezt a 2. ütemben felépülő kormányszállóval a föld alatt járható közműalagút kötötte össze), valamint az állandó kiszolgáló személyzet szállása is itt volt.
A legimpozánsabb új épület az 1982 és 1985 között elkészült kormányszálló volt, amit kifejezetten nagy létszámú delegációk elszállásolására és tanácskozásainak lebonyolítására terveztek. Az építészeti tervezés a KÖZTI feladata volt, a kivitelezést a Középületépítő Vállalat (KÖZÉV) végezte. Mivel a keleti blokk országainak nemzetközi küldöttségeit is itt kívánta vendégül látni a Magyar Népköztársaság vezetése, Polinszky Tibor szerint a térszervezés célja az volt, hogy a delegációk elkülönülésüket az épületen belül mindvégig meg tudják őrizni. A ház lelke az ablak nélküli, de pompás belsőépítészeti kialakítású nagy tanácsterem volt, amelyhez tizenöt nyelvű szinkrontolmács-rendszer kapcsolódott, közvetlen rálátással a tárgyalótérre. A tanácsterem a lehallgatás elleni védelemmel volt felszerelve.

A kormányszálló sokkal nagyobb léptékű épület volt, mint a korábban itt álló villák, és a terepviszonyokba is jelentős beavatkozással járt az építése. Annak érdekében, hogy sík területet kapjanak, mélyen bele kellett vágni a hegyoldalba, így jött létre az épület mögött a fenti fotón is jól látható rejtett alagsori kiszolgálószint.
Izgalmasak az épület makettjéről készült fényképek:


Fennmaradt egy olyan fénykép is, amely az 1983. január 20-i alapkőletétel során készült, bár látszik, hogy valójában a csoport mögött már állnak a domboldalba rejtett alagsori kiszolgálószint pillérei. Ennek az az oka, hogy az építkezés már 1982 májusában megkezdődött, és 1985 tavaszára a szállónak el kellett készülnie, ugyanis az MSZMP március 25-én kezdődő XIII. kongresszusára jó néhány delegációt vártak a külföldi testvérpártoktól. Ahogy az okmány szövege fogalmaz: „Utódainknak. Ez az épület a Magyar Népköztársaság megkülönböztetett tisztelettel fogadott vendégeinek budapesti elhelyezésére hivatott. Megépítésének célja, hogy a világ népei, a hazánkkal barátságra törekvő nemzetek küldötteinek méltó lakhelyéül szolgáljon. Létesítésére a Magyar Népköztársaság Minisztertanácsának döntése alapján kerül sor, azzal a tiszta szándékkal, hogy elősegítse a vendégek és a vendéglátók nemes barátságát, országaik jószándéku együttműködését.” A tervező, Polinszky Tibor (középen sötét szemüvegben) ismerteti a makettet, mellette balra Ábrahám Kálmán építésügyi és városfejlesztési miniszter, tőle jobbra dr. Horváth István belügyminiszter:

Meg tudjuk mutatni az okmányt is, amit rézhengerbe rejtve az aznapi újságokkal együtt elhelyeztek az egyik pillérben. Ha az épületet a várható értékesítés után lebontják, ami könnyen elképzelhető, ez esetleg előkerülhet majd. A dokumentumot ugyanaz a két miniszter, Horváth István és Ábrahám Kálmán írták alá, akik a fenti fotón is szerepelnek, de szerepel rajta Borbándi János miniszterelnök-helyettes neve is. A kis helyszínrajzon a feketével jelzett épülettömb az új kormányszálló, de látszik rajta a négy régi villa, az addigra elkészült úthálózat és az üzemeltetési épület is.

Maradt fenn fotó az elkészült épület bejárásáról is, amin a tervezők és kivitelezést végző vállalat vezetője mellett, Molnár György, a komplexum igazgatója és Németh Károly, az MSZMP KB titkára vett részt 1985 tavaszán.

A kormányszálló előregyártott betonpanel elemekből épült a dán Scan-Form acél zsalurendszer használatával, amivel gyorsan és hatékonyan lehetett a betonozást végezni. Külső karakterét a nagy felületű betonpanelek és a fémmunkás függönyfalak, illetve az alumínium ablakrendszer kontrasztja határozta meg, az 1980-as évek későmodern építészetére annyira jellemző sötétített üveg használatával. Az épület erősen horizontális hatású, eltérő léptéke ellenére abban hasonlít a régi villákra, hogy a terepszint változása miatt a Béla király út felőli, lejtőre támaszkodó hátsó front magas alépítményen ül. A főhomlokzaton a két kiemelkedő lépcsőházi tömb vertikális hangsúlyt képez, és toronyszerűen fogja közre a szalagablakokkal élénkített középső tömböt; az oldalszárnyak zártabbak és alacsonyabbak. Az ezekből a geometrikus „kockákból” összerakott épület megmozgatott, változatos tömeghatású. Ha legközelebbi párhuzamait keressük, a Pozsonyi út 77-79. szám alatti, 2022-ben lebontott egykori KISZ KB-székház és a Budapest Kongresszusi Központ juthat eszünkbe; mindhárom a kései Kádár-korszak reprezentatív állami beruházása volt, de talán a kormányszálló ezek közül a legzártabb, legszigorúbb hatású.
Megfigyelhető, hogy a fenti fekete-fehér makettfotók és az alapkőletételt mutató fényképen látszó makett között vannak eltérések, a megvalósult épült az utóbbinak felel meg. A két legjelentősebb különbséget a főhomlokzaton fedezhetjük fel: a lépcsőházi tömbök és a középső tömb jóval kisebb üvegfelülettel nyílnak meg, mint a korábbi maketten, és változott a főbejárat kialakítása is: az erősen kiülő, hosszú vasbetonlemezes előtető helyett a bejáratot egy jóval vaskosabb, lépcsősen visszaugratott szerkezet emeli ki (ez a forma eszünkbe juttathatja a Reimholz-Lázár-féle, jóval korábbi Domus Áruházat, de akár Breuer Marcell ikonikus New York-i Whitney Museumát is, de ebben az esetben természetesen nem határozza meg az egész épület képét, csupán egy hangsúlyos részletén jelenik meg).


Előremutató megoldás volt, hogy hátsó épülettömeg alacsonyabb szinten elhelyezkedő lapostetején süllyesztett tetőkertet alakítottak ki egyedi öntözőrendszerrel, rejtett járófelület-világítással, egyedi (piros) mobillámpákkal, amelyek megvilágították a kiemelt növénykazettákat. Abban az időben Magyarországon egy ilyen tetőkert még egyáltalán nem volt bevett megoldás, és a szálló legrangosabb vendégei számára védett, intim hangulatú szabadtéri találkozóhelyet kínált. A tetőkertbe ugyanis a 4. szinten lévő tanácsteremből lehetett kilépni, amit a két elnöki lakosztály fogott közre, vagyis elsősorban e két apartman kiemelt lakói használhatták.


Fennmaradtak az épület alaprajzai is, amelyekből kiderül az egykori funkcionális beosztás. A 2. szinten, ami ténylegesen a bejárati szintet jelentette, tágas előcsarnok helyezkedett el, ebből nyílt a már említett kétszint belmagasságú nagyterem (plenáris terem), ahol a nagy nemzetközi tanácskozásokat rendezték; az előcsarnokhoz további két szalon és két protokolltárgyaló csatlakozott. Az épület bal oldala volt az 1-es delegációnak kijelölt szárny tíz önálló apartmannal és két további tárgyalóval, az ugyanilyen elrendezésű jobbszárny szolgálta a 2-es delegáció elszállásolását. A 3. szinten a klubvetítő jelentette a közös teret, ettől balra és jobbra tíz-tíz apartman két-két tárgyalóval a 3-as és a 4-es delegáció vendégeit várta. Ezen a szinten orvosi szoba, fodrászat, szabó és egy konditerem is a delegációk kényelmét szolgálta. Amint említettük, a legfelső, 4. szinten volt a két elnöki lakosztály, a legalsó, 1-es szinten pedig az épület kiszolgáló funkciót helyezték el, de itt is volt egy jelentősebb közös tér, az étterem.
Az épület belső kialakítása is tükrözte, hogy a kormányszálló építése valódi presztízsberuházás volt. Erről máig jó képet ad a korábban már linkelt friss urbexes fényképsorozat, de tudunk mutatni néhány korabeli képet is. A belsőépítész Schinagl Gábor volt, az épület jelentősebb tereibe jórészt egyedi tervezésű burkolatok, bútorok, lámpák kerültek. A korszakra jellemző módon domináns a sötét faburkolatok használata, például az előcsarnokban, a klubvetítőben, a legfelső szinten lévő elnöki tárgyalóban és az étteremben, de a plenáris teremben például a mintás vörös tapéta dominált, ami a krómozott, gömblámpás csillárokkal és a mennyezet „rétegzett” dekorációjával sajátos „luxusűrhajó” hangulatot áraszt. A kisebb közösségi terek, például a klubvetítő és a társalgók falburkolatát egyedi textilművészeti alkotások díszítették, ezeken – a korszakra ugyancsak jellemzően – ideológiamentes, múltidéző-historizáló motívumok, lombos fák, barokk szökőkutak, vázák, Szinyei Merse Pál léghajója jelennek meg.



*
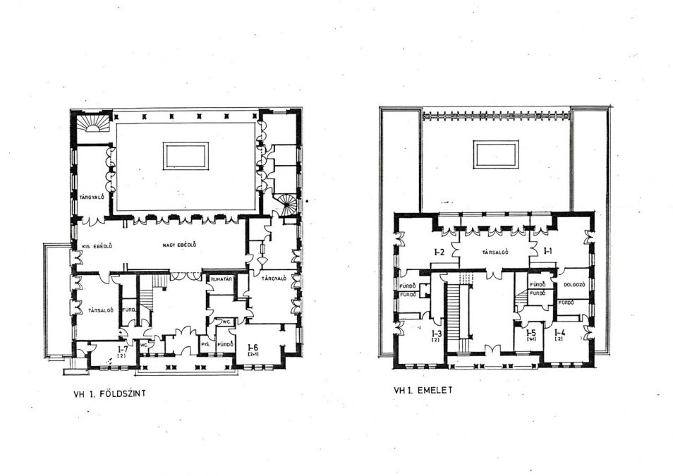
És még néhány dokumentum az eggyel régebbi múltról. A szakirodalomban régóta jelen van az az információ, hogy az 1950-es évek elején az MDP vezetői számára tervezett négy egyforma villát a korszak jeles építésze, Körner József tervezte. Ferkai András művészettörténész ezt már 2012-ben említi egy könyvkritikában. Körner eredeti tervei azonban jelenleg lappanganak. Polinszky Tibor tervezői munkája során annak idején találkozott egy szignó nélküli tervcsomaggal, amely az épületek homlokzatait, valamint mindhárom szintjük alaprajzi beosztását ábrázolta. Ezeket a terveket ő átrajzolta, így készült a fenti négy ábra, valamint a VH I-es villa földszinti és emeleti beosztását mutató letisztázott alaprajz.

A tervrajzok az épületek 50-es évekbeli állapotát mutatják, de nem biztos, hogy a legkorábbi állapotot: 1953. november 23-án az MDP Titkárságának ülésén határozták el, hogy az épületegyüttesből három villát a Központi Vezetőség és a Politikai Bizottság üdülőjévé alakítanak át. Előtte azonban úgy tűnik, hogy a villákat legalábbis egy évig (?) lakta is a korszak Rákosi Mátyás utáni három legnagyobb hatalmú vezetője: Farkas Mihály honvédelmi miniszter, Gerő Ernő miniszterelnök-helyettes és Révai József népművelési miniszter (erről részletesebben írtunk korábbi cikkünkben). Az alaprajzon azonban már azt látjuk, hogy a villa két apartmanra oszlik: logikus feltételezés, hogy ezek a tervrajzok az 1953-as üdülővé alakítás dokumentumai.

Nyitókép: aznapi újságok és az alapkőbe helyezendő vörösréz henger 1983. január 20-án, az új kormányszálló alapkőletételekor (forrás: Polinszky Tibor)
Ezeket a történelmi képeket nem mutathattuk volna meg olvasóink nélkül. Legyen támogatónk a Donably-n, a biztonságos, magyar fejlesztésű előfizetési platformon. Paypal, utalás és más lehetőségek itt >>>

